PRAVILNIKO NAČINU I MESTU UKRŠTANJA ŽELEZNIČKE PRUGE I PUTA I MERAMA ZA OSIGURANJE BEZBEDNOG SAOBRAĆAJA("Sl. glasnik RS", br. 14/2026) |
Ovim pravilnikom propisuje se način ukrštanja železničke pruge i puta, mesto na kojem se može izvesti ukrštanje železničke pruge i puta, mere za osiguranje bezbednog saobraćaja, izuzetni slučajevi u kojima razmak između dva ukrštanja železničke infrastrukture i puta može da bude manji od 2.000 m i način određivanja zone potrebne preglednosti na putnom prelazu.
Pojedini izrazi upotrebljeni u ovom pravilniku imaju sledeće značenje:
1) putni prelaz je mesto ukrštanja železničke pruge koja pripada javnoj železničkoj infrastrukturi, industrijskoj železnici ili industrijskom koloseku i puta u istom nivou, koji obuhvata i ukrštanje tih koloseka sa pešačkom ili biciklističkom stazom, u širini od 3 m mereno od ose koloseka, uključujući i prostor između koloseka kada se na putnom prelazu nalazi više koloseka;
2) biciklistička staza je put namenjen isključivo za kretanje bicikala i lakih električnih vozila;
3) pešačko-biciklistička staza je put namenjen za kretanje pešaka, bicikala i lakih električnih vozila;
4) zona potrebne preglednosti je trodimenzionalni prostor preglednosti u kome se vrši bezbedno zaustavljanje drumskih vozila ispred saobraćajnog znaka koji označava obavezno zaustavljanje;
5) intenzivan drumski saobraćaj na putu je drumski saobraćaj sa prosečnim godišnjim dnevnim saobraćajem većim od 7.000 drumskih vozila na dan;
6) intenzivan železnički saobraćaj je saobraćaj vozova koji podrazumeva prolaz više od 75 vozova na jednokolosečnoj pruzi, odnosno više od 150 vozova na dvokolosečnoj pruzi na dan u proseku, na godišnjem nivou;
7) intenzivan pešački i biciklistički saobraćaj je pešački i biciklistički saobraćaj sa prosečnim godišnjim dnevnim saobraćajem više od 6.000 pešaka i biciklista preko železničke pruge;
8) mesni uslovi su uslovi koji se odnose na topografske i urbanističke karakteristike lokacije i uslove saobraćajno-tehničke opravdanosti tehničkog rešenja na mestu ukrštanja železničke pruge i puta;
9) mesto ukrštanja železničke pruge i puta je mesto gde se presecaju osa koloseka železničke pruge i osa kolovoza puta, koje se izvodi kao putni prelaz ili van nivoa koloseka koje se izvodi kao objekat denivelacije puta i pruge, drumski nadvožnjak ili drumski podvožnjak, u naseljenom ili van naseljenog mesta, a koje je planirano urbanističkim ili prostornim planom;
10) naseljeno mesto je izgrađeni, funkcionalno objedinjeni prostor na kome su obezbeđeni uslovi za život i rad ljudi i zadovoljavanje zajedničkih potreba stanovnika;
11) obezbeđenje saobraćaja na putnom prelazu u nivou su mere koje se preduzimaju u zoni putnog prelaza u cilju stvaranja uslova za nesmetan, efikasan i bezbedan prelazak železničkih i drumskih vozila, odnosno pešaka i biciklista na mestu ukrštanja železničke pruge i puta, pešačke ili biciklističke staze, uvažavajući propisana prava prvenstva prolaza;
12) opasno područje na putnom prelazu je svaka tačka na kolovozu udaljena manje od 3 m mereno upravno od ose najbližeg koloseka, sa obe strane putnog prelaza, koje ne sme biti zauzeto od strane učesnika i vozila u drumskom saobraćaju, odnosno od spoljnih ivica drumskog vozila i stvari (tereta) na kraju drumskog vozila;
13) pešačka staza je put koji je namenjen isključivo za kretanje pešaka;
14) potrebna preglednost je udaljenost koja omogućuje učesnicima saobraćaja na putu pravovremeno uočavanje dolazećeg voza, odnosno signala na čelu železničkog vozila koje se kreće po koloseku železničke pruge prema putnom putnom prelazu, u cilju bezbednog prelaska drumskog vozila po putu preko železničkog koloseka na putnom prelazu;
15) PGDS je prosečan godišnji dnevni saobraćaj vozila;
16) put je izgrađena, odnosno utvrđena površina koju kao saobraćajnu površinu mogu da koriste svi ili određeni učesnici u saobraćaju, pod uslovima određenim zakonom i drugim propisima;
17) signalno-sigurnosni uređaj na putnom prelazu je uređaj železničke infrastrukture koji aktivira putnu saobraćajnu signalizaciju na putnom prelazu, kojom se učesnicima u drumskom saobraćaju neposredno najavljuje nailazak železničkih vozila i upozoravaju se da kretanje prilagode tako da se zaustavljaju ispred putnog prelaza jer neposredno predstoji prolazak železničkog vozila;
18) učesnici u saobraćaju na putnom prelazu su sva lica, železnička i drumska vozila koja na bilo koji način učestvuju u saobraćaju na putnom prelazu;
19) zona putnog prelaza je prostor opasnog područja na putnom prelazu i zona potrebne preglednosti sa puta na železnički kolosek.
II NAČIN UKRŠTANJA ŽELEZNIČKE PRUGE I PUTA I MESTO NA KOJEM SE MOŽE IZVESTI UKRŠTANJE
Ukrštanje železničke pruge i puta vrši se na dva načina, i to:
1) van nivoa koloseka, izgradnjom objekta drumske denivelacije, odnosno putnog podvožnjaka ili nadvožnjaka, pešačkog pothodnika ili pasarele, kao i biciklističkog podvožnjaka ili nadvožnjaka;
2) u nivou koloseka, izgradnjom putnih prelaza, sa odgovarajućom opremom ili uređajima za obezbeđenje saobraćaja, kao i na zajedničkom železničko-drumskom mostu sa kolovozom puta u nivou koloseka i po trasi koloseka.
Ukrštanje železničke pruge i puta van nivoa koloseka je denivelisano ukrštanje koje se vrši izgradnjom objekata drumske denivelacije.
Ukrštanje železničke pruge i puta van nivoa koloseka vrši se:
1) na mestu ukrštanja železničke pruge sa autoputem i motoputem;
2) na mestu ukrštanja puta i železničke pruge sa najvećom dopuštenom brzinom vozova većom od 160 km/h;
3) na mestu ukrštanja puta sa staničnim kolosecima između ulaznih i izlaznih skretnica;
4) na mestu ukrštanja puta i železničke pruge gde je saobraćaj drumskih vozila na putu intenzivan, ili ako je intenzivan železnički saobraćaj.
Ukrštanje železničke pruge i puta u nivou koloseka vrši se primenom i sprovođenjem sledećih tehničkih i bezbednosnih uslova:
1) kolovoz puta na mestu ukrštanja železničke pruge i puta izvodi se u nivou sa gornjom ivicom šine u dužini od najmanje 3 m sa obe strane železničke pruge, mereno od ose koloseka, odnosno od ose krajnjih koloseka, kada put prelazi preko dva ili više koloseka, uključujući i prostor između koloseka;
2) pri proračunu potrebne preglednosti sa puta na kolosek železničke pruge najveća usvojena dužina drumskog vozila na putu je 25 m;
3) sa obe strane železničke pruge, zbog bezbednosti saobraćaja na putnom prelazu, put može biti u nagibu najviše do 3% na dužini od najmanje 20 m, pri čemu pad ne može biti usmeren prema koloseku;
4) mesto ukrštanja železničke pruge i puta u nivou koloseka izvodi se po pravilu pod uglom od 90° u odnosu na železničku prugu. Izuzetno, upravljač železničke infrastrukture kada je to uslovljeno specifičnim mesnim uslovima ili saobraćajno-tehničkim razlozima, može odobriti ukrštanje pod uglom ne manjim od 60°;
5) kolovoz puta na putnom prelazu uređuje se kolovoznom konstrukcijom izgrađenom od gumenih panela, drvenih pragova, armirano-betonskih ploča i kamenih kocki, a izuzetno i privremeno od asfalta, sa propisanom dimenzijom konstrukcije žleba uz glavnu šinu za prolaz železničkih točkova po koloseku pruge;
6) kolosek na putnom prelazu u nivou uređuje se kontrašinama koje se ugrađuju sa unutrašnje strane kolosečnih šina koje su duže od širine puta, sa obe strane puta najmanje 50 cm, a na krajevima savijene u dužini od 50 cm ka osi koloseka. Odstojanje unutrašnje ivice glave na kraju savijenog dela kontrašine od unutrašnje ivice glave kolosečne šine iznosi najmanje 110 mm;
7) na putnom prelazu u nivou između kontrašine i kolosečne šine za prolaz šinskog vozila se obezbeđuje dubina žleba od 42-45 mm i širina žleba od najmanje 45 mm, što se postiže pouzdanim pričvršćivanjem kolosečne šine i kontrašine za pragove upotrebom odgovarajućeg pričvrsnog pribora;
8) kod putnih prelaza sa nadvišenom spoljnom šinom u krivini niveleta puta podešava se prema visini vozne površine nadvišene šine, odnosno poprečnom nagibu;
9) sastav šina vezan vezicama je udaljen najmanje 5 m od ivice puta na putnom prelazu;
10) pored izvođenja kolovozne konstrukcije iz tačke 5) ovog stava, kod puteva sa zemljanim kolovozom, kolovoz puta ispred i iza putnog prelaza u dužini od najmanje po 30 m se izvodi sa savremenom konstrukcijom (asfalt, beton, kamen i slično) sa otresištem od kamenog materijala u dužini od najmanje 15 m;
11) ukoliko put koji je izgrađen paralelno sa železničkim kolosekom:
(1) nailazi na raskrsnicu sa putem koji se ukršta sa železničkom prugom u nivou, tada saobraćajnica koja povezuje raskrsnicu i putni prelaz ne može biti kraća od 40 m mereno od krajnje ivice šine do bliže ivice puta;
(2) nailazi na putni prelaz, tada se put izmešta na udaljenost od najmanje 40 m od krajnje ivice šine do bliže ivice puta;
12) putni prelazi preko železničke pruge u naseljenim mestima osvetljavaju se uličnom rasvetom sa zaklonjenim izvorom svetlosti;
13) putni prelazi, kao mesta ukrštanja železničke pruge i puta, van naseljenog mesta mogu se osvetljavati noću zaklonjenim izvorom svetlosti, ako je to saobraćajno-tehnički opravdano za učesnike u drumskom saobraćaju;
14) na zaštitne kapije koje se nalaze na putu ispred putnog prelaza, zbog mogućeg opasnog uticaja kontaktne mreže iznad koloseka, postavljaju se table za upozorenje učesnika u drumskom saobraćaju na visoki napon, čiji je izgled dat u Prilogu 1 - Table na putnom prelazu sa upozorenjem na visoki napon od 25.000 V u neizolovanoj kontaktnoj mreži iznad elektrificiranog železničkog koloseka, koji je odštampan uz ovaj pravilnik i čini njegov sastavni deo.
Mesto ukrštanja železničke pruge i puta, u nivou koloseka planira se urbanističkim planom ili prostornim planom grada ili opštine na čijoj teritoriji se taj put nalazi. Prostornim ili urbanističkim planom se definiše:
1) železnička pruga (broj i naziv) na kojoj se putni prelazi nalaze, u skladu sa propisom kojim se uređuje kategorizacija železničkih pruga koje pripadaju javnoj železničkoj infrastrukturi;
2) kilometarski položaj putnog prelaza na kome se seku osa železničkog koloseka i osa puta, označen u kilometrima, metrima i centimetrima;
3) naziv, oznaka i kategorija puta na kom se putni prelaz nalazi, kao i naziv i adresa upravljača tog puta ili ulice, ako je taj put državni put, opštinski kategorisani put, ulica, nekategorisani put, pešačka staza, biciklistička staza ili pešačko-biciklistička staza;
4) katastarska parcela i katastarska opština na kojoj se nalazi secište ose puta i ose koloseka, odnosno izgrađen putni prelaz.
Pri spajanju puteva na jedno mesto ukrštanja železničke pruge i puta u nivou koloseka biraju se putni prelazi koji su opremljeni signalno-sigurnosnim uređajima za obezbeđenje saobraćaja na putnom prelazu (automatskim polubranicima ili branicima), signalno-sigurnosnim uređajima za davanje svetlosnih saobraćajnih znaka na putu ili put koji prelazi železničku prugu van nivoa koloseka.
Ako nijedno od mesta ukrštanja železničke pruge i puta ne ispunjava uslove iz stava 1. ovog člana, ukrštanje se može izvesti na putnom prelazu na kojem postoji zona potrebne preglednosti propisana ovim pravilnikom.
III MERE ZA OSIGURANJE BEZBEDNOG SAOBRAĆAJA NA PUTNIM PRELAZIMA U NIVOU
Mere za osiguranje bezbednog saobraćaja na putnim prelazima u nivou koloseka zavise od intenziteta saobraćaja na putu i železničkog saobraćaja na pruzi, preglednosti železničke pruge sa puta, brzine vožnje na pruzi i brzine na putu, kao i od topografskih i mesnih uslova, u skladu sa propisima kojima se uređuje bezbednost železničkog saobraćaja.
Saobraćaj drumskih vozila i pešaka, na putnom prelazu u nivou koloseka iz stava 1. ovog člana, reguliše se i obezbeđuje na sledeće načine:
1) saobraćajnim znacima na putu i zonom potrebne preglednosti;
2) semaforima i saobraćajnim znacima na putu;
3) automatskim polubranicima sa semaforima i saobraćajnim znacima na putu;
4) branicima ili polubranicima kojima se rukuje na licu mesta ili iz postavnice i saobraćajnim znacima na putu;
5) neposrednim regulisanjem saobraćaja na putnom prelazu i posebnim merama;
6) zaštitnim ogradama i saobraćajnim znacima ili mimoilaznicama i saobraćajnim znacima na putnim prelazima za pešake i bicikliste.
Na putnim prelazima mogu se instalirati video kamere za vizuelni nadzor zone putnog prelaza, železničke imovine, zauzetosti kolovoza puta, kao i nadzor bezbednosti saobraćaja na putnom prelazu.
1. Putni prelazi sa saobraćajnim znacima na putu i zonom potrebne preglednosti
Saobraćajnim znacima na putu i zonom potrebne preglednosti sa puta na kolosek železničke pruge vrši se obezbeđenje saobraćaja na mestu ukrštanja železničke pruge i puta u nivou koloseka ako je najveća dopuštena brzina na železničkoj pruzi do 100 km/h.
Na putu neposredno ispred putnog prelaza sa saobraćajnim znacima i zonom potrebne preglednosti postavljaju se saobraćajni znaci "Andrejin krst" i "obavezno zaustavljanje".
Za potrebe proračuna u ovom pravilniku je usvojeno merodavno najduže drumsko vozilo koje prelazi putni prelaz, ukupne dužine 25 m. Ako je na putu koji prelazi železničku prugu dužina drumskog vozila ograničena ili veće dužine od 25 m, ta ograničena ili veća dužina drumskog vozila uzima se kao merodavna za proračun.
Visina zone potrebne preglednosti obuhvata prostor, u visini između 1,0 i 2,5 m mereno iznad kote kolovoza, iznad tačke na putu od koje učesnik u drumskom saobraćaju treba da ima nesmetan i neprekinut pogled do tačke potrebne vidljivosti na železničkoj pruzi, kao i prostor iznad tačke potrebne vidljivosti na železničkoj pruzi u visini između 1,5 i 4 m mereno iznad gornje ivice šine železničke pruge, u skladu sa Prilogom 2 - Trodimenzionalni prikaz prostora zone potrebne preglednosti na prelazu puta preko železničke pruge, koji je odštampan uz ovaj pravilnik i čini njegov sastavni deo.
Radi najavljivanja učesnicima u drumskom saobraćaju da se železničko vozilo kreće i približava po koloseku železničke pruge prema putnom prelazu koji je obezbeđen saobraćajnim znacima na putu i zonom potrebne preglednosti, železničko vozilo daje zvučnim uređajem propisani zvučni signalni znak, u skladu sa propisima kojima se uređuju bezbednost železničkog saobraćaja, tehnička opremljenost železničke pruge od značaja za regulisanje saobraćaja i način regulisanja saobraćaja u zavisnosti od tehničke opremljenosti železničke pruge.
Tabela modela sa usvojenim elementima za definisanje dužine potrebne preglednosti sa puta na železnički kolosek ispred putnog prelaza, za najveće dopuštene brzine železničkih vozila na železničkoj pruzi, prikazana je u Prilogu 3 - Tabela izračunatih dužina potrebne preglednosti iz tačke b ispred putnog prelaza za usvojene ulazne parametre, koji je odštampan uz ovaj pravilnik i čini njegov sastavni deo.
2. Putni prelazi sa semaforima i saobraćajnim znacima na putu
Semaforima i saobraćajnim znacima na putu vrši se obezbeđenje saobraćaja na putnim prelazima, i to:
1) magistralne železničke jednokolosečne pruge sa državnim putevima II reda, opštinskim putevima i ulicama, ako je na njima PGDS od 250 do 2.500 drumskih vozila;
2) na mestu ukrštanja magistralne i regionalne železničke jednokolosečne pruge i puta, ako je najveća dopuštena brzina na pruzi do 120 km/h;
3) na mestu ukrštanja regionalne i lokalne železničke jednokolosečne pruge, industrijske železnice i industrijskog koloseka sa putevima i ulicama, ako se na putevima ili ulicama ostvaruje saobraćaj sa PGDS većim od 3.000 drumskih vozila.
Semafor, kada je aktivan, pokazuje svetlosne saobraćajne znake usmerene tako da su jasno vidljivi sa puta.
Semafori bojom svetlosti daju saobraćajne znake u skladu sa propisima kojima se uređuje bezbednost saobraćaja na putevima.
Ispravnost semafora na putnom prelazu kontroliše se u posednutom železničkom službenom mestu na železničkoj pruzi ili pomoću kontrolnog pružnog signala na železničkoj pruzi.
Tehničke karakteristike semafora uređuju se propisima kojima se uređuju bezbednost saobraćaja na putevima i tehnički uslovi za signalno-sigurnosne uređaje.
Semaforima se dodaju zvučni signali, u skladu sa propisima kojima se uređuju saobraćajna signalizacija i tehnički uslovi za železničke signalno-sigurnosne uređaje, radi podsticanja pažnje i opreznosti kod učesnika u drumskom saobraćaju.
Zvučni signal se daje sve vreme u isprekidanom ritmu dok semafor pokazuje žuto mirno i crveno svetlo.
Ukoliko je putni prelaz osiguran i polubranicima/branicima, zvučni signal se isključuje nakon spuštanja polubranika/branika.
3. Putni prelazi sa automatskim polubranicima, semaforima i saobraćajnim znacima na putu
Automatskim polubranicima sa semaforima i saobraćajnim znacima na putu, vrši se obezbeđenje saobraćaja na putnim prelazima, i to:
1) na mestu ukrštanja magistralne železničke pruge sa državnim putevima I reda, kao i putevima II reda sa drumskim saobraćajem na prelazu preko železničke pruge sa PGDS većim od 2.500 drumskih vozila;
2) na mestu ukrštanja magistralne i regionalne železničke pruge i puta, ako je najveća dopuštena brzina na pruzi do 160 km/h;
3) na mestu ukrštanja ostalih železničkih pruga sa putevima, ako je na putu PGDS veći od 5.000 drumskih vozila;
4) dvostrukim automatskim polubranicima sa semaforima na obe strane puta ili ulice ispred putnog prelaza gde je to saobraćajno-tehnički opravdano, kao savremena zamena za klasične mehaničke branike preko cele širine kolovoza puta.
Signalno-sigurnosnim uređajem sa automatskim polubranicima i semaforima reguliše se saobraćaj na putu preko putnog prelaza položajem signalne motke iznad kolovoza puta i obojenim svetlostima na semaforu. Signalna motka polubranika i semafor daju saobraćajne znake učesnicima saobraćaja na putu u skladu sa propisima kojima se uređuje bezbednost saobraćaja na putevima.
Automatskim polubranicima sa semaforima se obustavlja saobraćaj na desnoj kolovoznoj traci puta, odnosno na desnoj polovini kolovoza puta ispred putnog prelaza, sa obe strane železničke pruge, položajem signalne motke polubranika i odgovarajućim svetlom na semaforu.
Automatskim polubranicima i semaforima mogu se dodati zvučni signali, u skladu sa propisima kojim se uređuje saobraćajna signalizacija na putevima i tehničkim uslovima za signalno-sigurnosne uređaje na železnici.
Izgled, oblik, dimenzije i ugradnja automatskih polubranika na putnom prelazu propisani su srpskim standardom SRPS Z.S2.150.
Signalno-sigurnosnim uređajem sa automatskim polubranicima i semaforima obezbeđuje se saobraćaj na putnom prelazu, tako što:
1) kada se signalne motke polubranika podignu u gornji odnosno vertikalni položaj, time daju saobraćajni znak učesnicima drumskog saobraćaja na putu da je, u slučaju da se prugom ne kreće šinsko vozilo, slobodan prelazak preko železničke pruge na putnom prelazu;
2) kada se signalne motke polubranika spuste u horizontalan položaj preko desne saobraćajne trake na kolovozu puta, time daju saobraćajni znak da je zabranjen prelazak učesnicima u drumskom saobraćaju preko železničke pruge na putnom prelazu, što se ostvaruje po nailasku prve osovine železničkog vozila na uključne delove uređaja ispred putnog prelaza na koloseku pruge. Signalne motke polubranika se podižu u gornji odnosno vertikalan položaj po prelasku poslednje osovine železničkog vozila preko isključnih delova uređaja iza putnog prelaza na koloseku pruge;
3) signalno-sigurnosni uređaj sa automatskim polubranicima je sa semaforima u takvoj zavisnosti, da se: žuto svetlo pojavi nailaskom železničkog vozila na uključne delove uređaja, crveno svetlo pojavi pre početka spuštanja automatskih polubranika u horizontalan položaj, a semafor se ugasi kada se automatski polubranik podigne u vertikalan položaj;
4) u slučaju nestanka električne energije za napajanje signalno-sigurnosnog uređaja na putnom prelazu koje onemogućuje njegovo funkcionisanje, signalne motke polubranika se odmah spuste u horizontalan položaj ili postave u drugi položaj kako je to predviđeno za odnosni tip uređaja, kojim se zabranjuje učesnicima u drumskom saobraćaju prelazak preko železničke pruge, ili se upozoravaju na potrebnu dodatnu opreznost pri daljem kretanju po putu preko opasne zone putnog prelaza;
5) kontrola položaja signalnih motki i ispravnost signalno-sigurnosnog uređaja polubranika sa semaforima ostvaruju u posednutom železničkom službenom mestu ili železničkim kontrolnim pružnim signalima na pruzi.
Pre započetog spuštanja signalnih motki polubranika, učesnici u drumskom saobraćaju pravovremeno se obaveštavaju semaforima i zvučnim signalima o predstojećem spuštanju signalnih motki polubranika. Vreme obaveštavanja da predstoji spuštanje signalnih motki automatskih polubranika ne može biti kraće od 15 sekundi.
Automatski polubranici sa signalnim motkama i semafori ugrađuju se pored puta na udaljenosti od najmanje 3,00 m od najbliže šine koloseka, sa obe strane koloseka pruge.
4. Putni prelazi sa branicima (ili polubranicima) kojima se rukuje na licu mesta ili iz postavnice i saobraćajnim znacima na putu
Branicima (ili polubranicima) kojima se rukuje na licu mesta ili iz postavnice vrši se obezbeđenje saobraćaja na putnom prelazu u naseljenom mestu i na drugim mestima gde je to saobraćajno-tehnički opravdano.
Signalnom motkom branika se drumski saobraćaj zatvara preko cele širine kolovoza puta odnosno preko obe saobraćajne trake puta, a signalnom motkom polubranika kojim se rukuje na licu mesta ili iz postavnice, drumski saobraćaj se zatvara na desnoj polovini kolovoza odnosno desnoj traci puta, kada se železnička vozila po železničkoj pruzi približavaju putnom prelazu.
Signalno-sigurnosnim uređajem sa branicima ili polubranicima kojima se rukuje na licu mesta ili iz postavnice reguliše se saobraćaj na putu preko putnog prelaza položajem signalne motke iznad kolovoza puta.
Signalna motka branika i polubranika kojima se rukuje na licu mesta ili iz postavnice daje saobraćajne znake učesnicima saobraćaja na putu u skladu sa propisima kojima se uređuje bezbednost saobraćaja na putevima.
Signalni uređaj sa branicima i polubranicima kojim se rukuje na licu mesta ili iz postavnice se dele prema redovnom položaju signalne motke, prema načinu pogona postavnog dela uređaja i prema mestu upravljanja signalnim uređajem.
Signalni uređaj sa branicima i polubranicima kojim se rukuje na licu mesta ili iz postavnice dele se prema redovnom položaju signalnih motki na:
1) signalne motke u podignutom položaju, odnosno u položaju kojim učesnicima drumskog saobraćaja na putu redovno dozvoljavaju prelazak preko pruge na putnom prelazu u slučaju da se prugom ne kreće šinsko vozilo, a njima se rukuje, odnosno postavljaju se u horizontalan položaj, poprečno na osu puta, i time daju saobraćajni znak da je učesnicima u drumskom saobraćaju na putu zabranjen prelazak preko železničke pruge, kada se železničko vozilo po koloseku približava putnom prelazu;
2) signalne motke u horizontalnom položaju redovno postavljene poprečno na osu puta, čime daju saobraćajni znak da je učesnicima u drumskom saobraćaju na putu zabranjen prelazak preko železničke pruge, a njima se rukuje, odnosno postavljaju se u podignuti položaj i time se daje saobraćajni znak učesnicima u drumskom saobraćaju na putu da mogu preći preko železničke pruge na putnom prelazu u slučaju da se prugom ne kreće šinsko vozilo. Signalne motke ovih branika/polubranika se mogu podići na zahtev učesnika u drumskom saobraćaju samo kada nema saobraćaja železničkih vozila na železničkoj pruzi;
3) signalne motke redovno postavljene horizontalno i poprečno na osu puta tako da ne dozvoljavaju drumski saobraćaj, da su spuštene i zaključane u horizontalnom položaju. Ove signalne motke branika su ugrađene na putnim prelazima koji služe za potrebe određenih nosilaca prava korišćenja puta za prelazak drumskih vozila ugovornog korisnika preko železničkog koloseka na putnom prelazu, što se uređuje posebnim ugovorom. Na ovim putnim prelazima sami ugovorni korisnici putnog prelaza otključavaju i zaključavaju signalne motke branika posle prijema dozvole za prelazak drumskim vozilom preko putnog prelaza. Ugovorni korisnik vraća signalne motke u redovan položaj i zaključava ih posle prelaska drumskog vozila preko putnog prelaza. Ovim signalnim uređajima na putnom prelazu sme da rukuje ugovorni korisnik po odobrenju nadzorne železničke stanice.
Signalni uređaji branika i polubranika prema načinu pogona signalnih motki, dele se na branike/polubranike na električni pogon i branike na mehanički pogon.
Signalni uređaji branika i polubranika prema mestu upravljanja, dele se na branike i polubranike kojima se rukuje na licu mesta ili iz postavnice.
Branici i polubranici kojima se rukuje na licu mesta ili iz postavnice su u vidnom polju železničkog radnika koji njima rukuje ili ima video nadzor na putnom prelazu.
Ako se rukovalac branika nalazi na mestu odakle se ne vide branici ili nema video nadzora, postavlja se uređaj za davanje svetlosnih i zvučnih znaka na putu kojima se učesnici u drumskom saobraćaju upozoravaju o spuštanju branika.
5. Putni prelazi sa neposrednim regulisanjem saobraćaja na putnom prelazu i posebnim merama
Neposrednim regulisanjem saobraćaja na putnom prelazu i posebnim merama vrši se obezbeđenje saobraćaja na putnim prelazima u slučaju:
1) kretanja železničkih vozila na manipulativnim železničkim prugama i industrijskim kolosecima;
2) kvara ili privremene neupotrebljivosti semafora, automatskih polubranika, kao i branika i polubranika kojima se rukuje na licu mesta ili iz postavnice.
Ukoliko nastane kvar ili privremena neupotrebljivost signalno-sigurnosnog uređaja na putnom prelazu, saobraćaj na putnom prelazu obezbeđuje se primenom jedne od sledećih posebnih mera:
1) raspoloživim tehničkim sredstvima i signalnom opremom rukovanjem na licu mesta, odnosno kako je to određeno tehničkim rešenjem signalno-sigurnosnog uređaja za stanje kvara, ako za to postoje uslovi;
2) ovlašćeni radnik upravljača železničke infrastrukture poseda putni prelaz i neposredno reguliše saobraćaj davanjem ručnih saobraćajnih znaka zastavicom prema drumskim vozilima, u skladu sa propisima kojima se uređuje bezbednost saobraćaja na putevima;
3) železničko vozilo se zaustavlja ispred putnog prelaza uz davanje signalnog znaka propisanog članom 11. ovog pravilnika, a kada se mašinovođa uveri da su se drumska vozila zaustavila ispred putnog prelaza kod signalnog znaka koji označava mesto obaveznog zaustavljanja ispred železničke pruge, železničko vozilo lagano i pažljivo nastavlja vožnju, a drumska vozila nastavljaju vožnju po odlasku železničkog vozila, odnosno poslednjeg vozila u vozu područja putnog prelaza.
Posebne mere iz stava 1. ovog člana preduzimaju se odmah po nastanku kvara ili privremene neupotrebljivosti signalno-sigurnosnog uređaja na putnom prelazu.
Kada su na prelazu puta preko železničke pruge postavljeni semafor, odnosno semafor sa branicima ili polubranicima, a uređaj za njihovu upotrebu nije ispravan ili se ne koristi, semafor pokazuje trepćuće žuto svetlo.
6. Putni prelazi za pešake i bicikliste sa ogradama ili mimoilaznicama i saobraćajnim znacima
Zaštitnim ogradama sa mimoilaznicama i saobraćajnim znacima na putnim prelazima za pešake i bicikliste obezbeđuje se saobraćaj na mestu ukrštanja železničke pruge sa pešačkom ili biciklističkom stazom:
1) ako postoji potrebna preglednost sa pešačke i biciklističke staze na kolosek železničke pruge, u skladu sa članom 29. ovog pravilnika;
2) ako postoji saobraćajno-tehnička potreba i opravdanost da se posebna pešačka ili posebna biciklistička staza, planirana u urbanističkom planu naselja ili prostornom planu teritorije jedinice lokalne samouprave (za prelaze izvan naselja), sprovede preko koloseka železničke pruge, ili industrijskog koloseka na mestu putnog prelaza na kome je saobraćaj obezbeđen saobraćajnim znacima na stazi;
3) ako je najveća dopuštena brzina železničkih vozila na pruzi do 100 km/h;
4) ako železnička pruga ima jedan pružni kolosek.
Merama za osiguranje bezbednog saobraćaja iz stava 1. ovog člana mogu se dodati i signalno-sigurnosni uređaji: semafori, automatski polubranici sa semaforima, branici ili polubranici kojima se rukuje na licu mesta ili iz postavnice.
Zona potrebne preglednosti sa pešačke ili biciklističke staze na kolosek železničke pruge postoji ako pešak ili biciklista na putnom prelazu udaljenom najmanje 3,00 m od ose železničkog koloseka, sa obe strane železničke pruge, ima nesmetan vidik na železničku prugu najmanje na daljinu koja se određuje prema formuli:

gde je:
Lppps - dužina potrebne preglednosti sa pešačke ili biciklističke staze na železničku prugu (m),
Vžmax - brojčana vrednost najveće dopuštene brzine na železničkoj pruzi u zoni putnog prelaza u km/h.
Dužina zone potrebne preglednosti sa staze iz stava 1. ovog člana na železničku prugu meri se po osi pružnog koloseka računajući od njenog secišta sa osom staze iz stava 1. ovog člana na jednu i drugu stranu, u skladu sa prikazom određivanja zone potrebne preglednosti datim u Prilogu 4 - Zona potrebne preglednosti na prelazu pešačke ili biciklističke staze preko železničke pruge, koji je odštampan uz ovaj pravilnik i čini njegov sastavni deo (u daljem tekstu: Prilog 4).
Na putnom prelazu pešačke ili biciklističke staze i železničke pruge pešak ili biciklista propušta železničko vozilo koje se kreće po železničkoj pruzi.
Na putnim prelazima koji su predviđeni samo za pešački ili biciklistički saobraćaj, na kojima su pored kolovoza puta izdvojene pešačke ili biciklističke staze kao posebni građevinski objekti, postavljaju se mimoilaznice na stazi sa zaštitnim ogradama uz železničku prugu. Kolovozna konstrukcija pešačke ili biciklističke staze izgrađuje se u skladu sa članom 5. ovog pravilnika.
Zaštitne ograde i mimoilaznice postavljaju se na pešačkoj ili biciklističkoj stazi sa obe strane železničke pruge, a širina prolaza kroz zaštitnu ogradu i mimoilaznicu obezbeđuje prolaz dva reda pešaka, odnosno dva reda biciklista, što je prikazano u Prilogu 5 - Zaštitna ograda i mimoilaznica na prelazu pešačke ili biciklističke staze preko železničke pruge, koji je odštampan uz ovaj pravilnik i čini njegov sastavni deo.
Konstrukcija mimoilaznice izvodi se od čeličnih cevi prečnika najmanje 10 cm, visine najmanje 120 cm, sa širinom staze do 160 cm.
Udaljenost od krajnje ivice šine najbližeg koloseka na železničkoj pruzi do najbliže ivice konstrukcije mimoilaznice i zaštitne ograde iznosi najmanje 3,00 m, sa obe strane železničke pruge.
Mimoilaznice se boje crveno-belo, sa naizmeničnim poljima dužine 25 cm.
Na pešačkom prelazu preko železničke pruge, osim mimoilaznica koje omogućuju pešacima da bezbedno prelaze železničku prugu, uz mimoilaznicu se postavljaju dodatne usmeravajuće ograde visine od najmanje 120 cm i potrebne dužine, paralelno uz železničku prugu, tako da se onemogući pristup pešaka na kolosek železničke pruge izvan uređenih pešačkih staza i mimoilaznica.
Pored mimoilaznice i zaštitne ograde, pešačkih ili biciklističkih staza, postavljaju se saobraćajni znaci "Andrejin krst" i "obavezno zaustavljanje".
Ako je putni prelaz za pešake ili bicikliste u sastavu putnog prelaza puta i ta dva prelaza čine jednu celinu, istovremeno se obezbeđuje saobraćaj na putu i pešačkoj ili biciklističkoj stazi, u skladu sa članom 8. stav 2. tač. 1)-4) i tačka 6) ovog pravilnika.
Ako je putni prelaz opremljen u skladu sa članom 8. stav 2. tač. 2)-4) i tačka 6) ovog pravilnika, saobraćajna signalizacija za drumski saobraćaj na putu primenjuje se i za pešački ili biciklistički saobraćaj na istom putnom prelazu.
Putni prelaz za pešačke ili biciklističke staze preko koloseka izvodi se pod uglom od 90° u odnosu na osu koloseka. Na pešačkim i biciklističkim stazama ispred putnog prelaza postavljaju se zaštitne ograde sa mimoilaznicama u skladu sa članom 28. ovog pravilnika i Prilogom 4.
Izuzetno od stava 1. ovog člana, u slučaju kada se na putnom prelazu ukršta železnička pruga i put koji ima i pešačke ili biciklističke staze, pod uglom od 60° do 90°, konstrukcija mimoilaznice i zaštitne ograde ispred pešačkog prelaza preko železničke pruge izvode se prema uglu ukrštanja kolovoza puta odnosno ulice i železničke pruge.
IV IZUZETNI SLUČAJEVI RAZMAKA IZMEĐU DVA UKRŠTANJA ŽELEZNIČKE INFRASTRUKTURE I PUTA
Razmak između dva ukrštanja železničke infrastrukture i puta definisan je propisima kojima se uređuje bezbednost u železničkom saobraćaju.
Izuzetno, razmak između dva ukrštanja železničke pruge i puta u nivou koloseka može da bude manji od 2.000 m, u slučajevima kada se putni prelazi nalaze:
1) na području naseljenih mesta, na mestima prostorne ili urbane ograničenosti;
2) na mestu nepovoljne konfiguracije terena;
3) na mestu na kom bi zbog ukidanja putnog prelaza sa manjim rastojanjem od 2.000 m do susednog putnog prelaza bilo potrebno da se izgrade novi obilazni i spojni putevi u dužini većoj od 4.000 m.
U slučajevima iz stava 2. ovog člana, razmak izuzetno može da iznosi manje od 2.000 m, i to:
1) na magistralnim železničkim prugama ne manje od 1.500 m;
2) na regionalnim železničkim prugama ne manje od 700 m;
3) na lokalnim železničkim prugama i prugama industrijskih železnica ne manje od 500 m;
4) na industrijskim kolosecima ne manje od 100 m, odnosno prema mesnim uslovima;
5) na svim železničkim prugama radi realizacije projekta od posebnog značaja za Republiku Srbiju, prema mesnim uslovima.
V NAČIN ODREĐIVANJA ZONE POTREBNE PREGLEDNOSTI NA PUTNOM PRELAZU
Obezbeđenje potrebne preglednosti
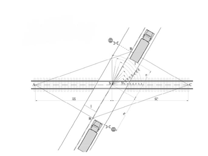
Potrebna preglednost za učesnike u drumskom saobraćaju na putnom prelazu data je u Prilogu 6 - Grafički prikaz elemenata zone potrebne preglednosti na pasivnom putnom prelazu, koji je odštampan uz ovaj pravilnik i čini njegov sastavni deo (u daljem tekstu: Prilog 6), u grafičkom obliku i obliku tabele sa numeričkim veličinama, kao model za primenu u realnim uslovima.
Zona potrebne preglednosti omeđena je tačkama A, B, C i S prikazanim na slici u Prilogu 6.
Tačka B nalazi se na putu ispred putnog prelaza i ispred saobraćajnog znaka "Andrejin krst" odnosno znaka "obavezno zaustavljanje". Tačka V predstavlja i početak zone potrebne preglednosti putnog prelaza i za nju se određuje potrebna preglednost sa puta na železničku prugu.
Tačka A i tačka C nalaze se u osi koloseka železničke pruge i na njima se iz tačke B na putu jasno vidi čelo železničkog vozila.
Tačka S nalazi se na mestu gde se seku osa puta i osa koloseka.
Linija I je zamišljena ravan koja je pod uglom od 90o u odnosu na osu puta i koju prelazi zadnji deo drumskog vozila, zajedno sa tovarom, da bi drumsko vozilo bilo izvan slobodnog profila železničke pruge, odnosno izvan opasne zone putnog prelaza.
Vrednost "n" za udaljenost linije I od tačke S mereno po osi puta od ose železničkog koloseka, zavisno od ugla ukrštanja puta i koloseka železničke pruge je:
1) za ugao od 80 do 90°, udaljenost linije I od tačke S iznosi 3,50 m;
2) za ugao od 70 do 79°, udaljenost linije I od tačke S iznosi 4,50 m;
3) za ugao od 60 do 69°, udaljenost linije I od tačke S iznosi 5,50 m.
Vrednost "m" za udaljenost čela drumskog vozila ispred saobraćajnog znaka "Andrejin krst" i znaka "obavezno zaustavljanje" do ose železničkog koloseka i tačke S mereno po osi puta, zavisna je od ugla ukrštanja puta i koloseka železničke pruge i iznosi:
1) za ugao od 80 do 90°, udaljenost čela vozila od tačke S iznosi 3,50 m;
2) za ugao od 70 do 79°, udaljenost čela vozila od tačke S iznosi 4,50 m;
3) za ugao od 60 do 69°, udaljenost čela vozila od tačke S iznosi 5,50 m.
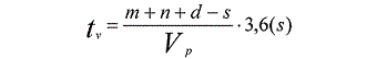
Potrebnu preglednost na putnom prelazu izračunava upravljač putne infrastrukture za učesnike u saobraćaju na putevima, prema formuli:
![]()
gde je:
Lppp - dužina potrebne preglednosti sa puta na železničku prugu (m);
tpdv - ukupno vreme potrebno da drumsko vozilo najveće dopuštene dužine krene od tačke B (tačka na putu ispred saobraćajnog znaka koji označava mesto na kom put prelazi preko železničke pruge - "Andrejin krst" i znaka "obavezno zaustavljanje") i svojim zadnjim delom pređe granicu opasnog područja železničke pruge s druge strane putnog prelaza, odnosno udaljenost do linije I (s);
Vž - brojčana vrednost najveće dopuštene brzine na železničkoj pruzi u zoni putnog prelaza (km/h).
Ukupno vreme potrebno da drumsko vozilo najveće dopuštene dužine pređe preko opasnog područja na putnom prelazu, odnosno veličina "tpdv" određuje se prema formuli:
tpdv = ta + tv (s),
gde je:
ta - vreme potrebno da drumsko vozilo nakon pokretanja postigne Vp = 7 km/h uz pretpostavljeno ravnomerno ubrzano kretanje (s);
tv - vreme vožnje drumskog vozila od postizanja Vp do prelaska zadnjim delom preko linije I opasnog područja na putnom prelazu (s).
Vreme potrebno da drumsko vozilo nakon pokretanja postigne Vp, odnosno veličina "ta" određuje se prema formuli:

gde je:
Vp = 7 km/h - brzina drumskog vozila na putnom prelazu;
a = 1 m/s2 - ubrzanje drumskog vozila (od trenutka pokretanja iz tačke B do trenutka postizanja Vp).
Vreme vožnje drumskog vozila od postizanja Vp do prelaska opasnog područja na putnom prelazu zadnjim delom vozila, odnosno veličina "tv" određuje se prema formuli:

gde je:
m - udaljenost saobraćajnog znaka koji označava mesto na kome put prelazi preko železničke pruge - "Andrejin krst" od ose koloseka merena po osi puta (m);
n - udaljenost linije I od ose koloseka merena po osi puta (m);
d - najveća dužina drumskog vozila, koja je usvojena i iznosi 25 (m);
s - put koji drumsko vozilo pređe od pokretanja iz tačke B do postizanja Vp (m);

Ako je na putu koji prelazi železničku prugu dužina drumskog vozila manja ili veća u odnosu na usvojenu najveću dužinu vozila "d", onda se ta dužina drumskog vozila uzima kao merodavna za proračun.
Danom stupanja na snagu ovog pravilnika prestaje da važi Pravilnik o načinu ukrštanja železničke pruge i puta, pešačke ili biciklističke staze, mestu na kojem se može izvesti ukrštanje i merama za osiguranje bezbednog saobraćaja ("Službeni glasnik RS", broj 89/16).
Ovaj pravilnik stupa na snagu osmog dana od dana objavljivanja u "Službenom glasniku Republike Srbije".
TABLE NA PUTNOM PRELAZU SA UPOZORENJEM NA VISOKI NAPON OD 25.000 V U NEIZOLOVANOJ KONTAKTNOJ MREŽI IZNAD ELEKTRIFICIRANOG ŽELEZNIČKOG KOLOSEKA


TRODIMENZIONALNI PRIKAZ PROSTORA ZONE POTREBNE PREGLEDNOSTI NA PRELAZU PUTA PREKO ŽELEZNIČKE PRUGE

TABELA IZRAČUNATIH DUŽINA POTREBNE PREGLEDNOSTI IZ TAČKE B ISPRED PUTNOG PRELAZA ZA USVOJENE ULAZNE PARAMETRE
Model za proračun dužine potrebne preglednosti od tačke S do tačke na koloseku železničke pruge A (dužina AS) i do tačke C (dužina SC) za uslov da je AS=SC, izračunate su u zavisnosti od brzine vozova na pruzi, udaljenosti tačaka zone potrebne preglednosti na putu od tačke S prema grafičkom prikazu datom u Prilogu 3. ovog pravilnika, za usvojene elemente potrebne preglednosti: dužinu drumskog vozila od 25 m, Vp=7km/h, a=1m/s2 i usvojene dužine "m" i "n":
Tabela 1: Tabelarni prikaz izračunatih elemenata potrebne preglednosti za pasivne putne prelaze i usvojene ulazne parametre
Dužine potrebne preglednosti (m) |
|||||||||||||||
Vž(km/h) |
Za drumsko vozilo dužine 25 (m) i (m+n) u metrima |
||||||||||||||
7 |
8 |
9 |
10 |
11 |
12 |
13 |
14 |
15 |
16 |
17 |
18 |
19 |
20 |
||
10 |
48 |
50 |
51 |
53 |
54 |
56 |
57 |
58 |
60 |
61 |
63 |
64 |
66 |
67 |
|
20 |
97 |
100 |
102 |
105 |
108 |
111 |
114 |
117 |
120 |
122 |
125 |
128 |
131 |
134 |
|
30 |
145 |
149 |
154 |
158 |
162 |
167 |
171 |
175 |
180 |
184 |
188 |
192 |
197 |
201 |
|
40 |
194 |
199 |
205 |
211 |
217 |
222 |
228 |
234 |
239 |
245 |
251 |
256 |
262 |
268 |
|
50 |
242 |
249 |
256 |
263 |
271 |
278 |
285 |
292 |
299 |
306 |
313 |
321 |
328 |
335 |
|
60 |
290 |
299 |
308 |
316 |
325 |
333 |
342 |
350 |
359 |
368 |
376 |
385 |
393 |
402 |
|
70 |
339 |
349 |
359 |
369 |
379 |
389 |
399 |
409 |
419 |
429 |
439 |
449 |
459 |
469 |
|
80 |
387 |
399 |
410 |
422 |
433 |
444 |
456 |
467 |
479 |
490 |
502 |
513 |
524 |
536 |
|
90 |
436 |
449 |
461 |
474 |
487 |
500 |
513 |
526 |
539 |
551 |
564 |
577 |
590 |
603 |
|
100 |
484 |
498 |
513 |
527 |
541 |
556 |
570 |
584 |
598 |
613 |
627 |
641 |
656 |
670 |
|
ZONA POTREBNE PREGLEDNOSTI NA PRELAZU PEŠAČKE ILI BICIKLISTIČKE STAZE PREKO ŽELEZNIČKE PRUGE

Gde je:
B - mesto na pešačkoj ili biciklističkoj stazi sa kog učesnik u pešačkom saobraćaju ima neprekinut pregled do mesta vidljivosti na pruzi u tački A i C;
A i C - mesto vidljivosti na pruzi udaljeno od pešačkog ili biciklističkog prelaza, na kome učesnik u pešačkom saobraćaju sa mesta vidljivosti na pešačkoj ili biciklističkoj stazi ima mogućnost da pouzdano uoči dolazeće železničko vozilo iz tačke B i da stane pre izlaska iz mimoilaznice na stazu preko koloseka. Mesto vidljivosti određuje se izračunavanjem puta približavanja železničkog vozila.
ZAŠTITNA OGRADA I MIMOILAZNICA NA PRELAZU PEŠAČKE ILI BICIKLISTIČKE STAZE PREKO ŽELEZNIČKE PRUGE

GRAFIČKI PRIKAZ ELEMENATA ZONE POTREBNE PREGLEDNOSTI NA PASIVNOM PUTNOM PRELAZU

Gde je:
B - tačka na liniji zaustavljanja sa koje učesnik u drumskom saobraćaju ima neprekinutu preglednost do mesta vidljivosti na pruzi u tački A i C;
A i C - mesto vidljivosti na koloseku pruge do koga postoji potrebna preglednost;
S - tačka u kojoj se seku osa koloseka železničke pruge i osa kolovoza puta, od koje se meri izračunata dužina potrebne preglednosti sa puta na železničku prugu, na oba pravca i to: pravac A-S i pravac C-S.